Contenido principal

Se construirá un Centro Universitario en nuestra ciudad

12/06/2023

El intendente Miguel Gesualdi participó el viernes 9 de junio en la ciudad de Mar del Plata del primer encuentro de la "Red Bonaerenses de Centros Universitarios".

 

Es parte del Plan Quinquenal Provincial.

 

Luego del encuentro firmó un Convenio con la Provincia para la construcción de la primera etapa de aulas universitarias con el fin de tener en nuestra ciudad nuevas carreras para nuestros estudiantes.

 

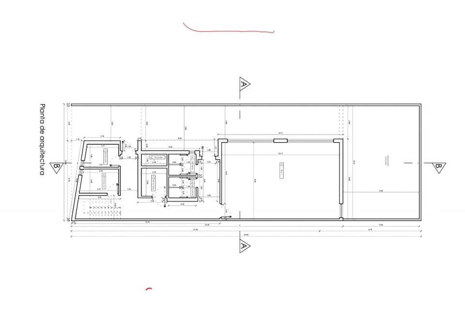
Se construirán aulas universitarias en Moreno 554 (entre Maipú y 25 de Mayo), mediante el Convenio firmado con el jefe de Asesores del Gobernador, Carlos Bianco y el director Ejecutivo del Consejo Provincial de Coordinación con el Sistema Universitario y Científico, Juan Brardinelli, a través del "Programa Puentes" Red Bonaerense de Centros Universitarios  Estuvo presente el Director General de Cultura y Educación, Alberto Sileoni y el acompañamiento del senador Facundo Ballesteros.

 

El intendente Gesualdi firmó el Convenio por $ 30.000.000 para la primera etapa de un proyecto en el que se realizará la administración, sala de profesores, baños, aulas y el SUM (Salón de Usos Múltiples) del futuro Centro Universitario.

 


Imágenes: